Beschreibung

In einer ruhigen Anliegerstraße von Frankenbach erwartet Sie ein Anwesen, das durch Raum und enorme Flexibilität besticht. Dieses im Jahr 1972 massiv errichtete Mehrfamilienhaus vereint auf einer stattlichen Wohnfläche von rund 307 m² insgesamt zehn Zimmer und bietet durch sein zentrales Treppenhaus ideale Voraussetzungen für anspruchsvolles Mehrgenerationenwohnen oder eine attraktive Teilvermietung der drei Ebenen.

Das Herzstück des Hauses bildet das Erdgeschoss, welches ein außergewöhnliches Wohngefühl vermittelt. Das weitläufige Wohnzimmer präsentiert sich hier als wahre Wohlfühloase: Edles Parkett und großzügige Fensterfronten schaffen eine helle, warme Atmosphäre. Ein stilvoller Kamin sorgt als optisches und funktionales Highlight für behagliche Stunden und unterstreicht den exklusiven Charakter dieser Etage. Direkt angrenzend lädt die moderne Einbauküche zu kulinarischen Abenden ein. Besonders hervorzuheben ist zudem das erst kürzlich kernsanierte Badezimmer, das mit hochwertigen Materialien und zeitloser Ästhetik überzeugt.

Auch das Untergeschoss wurde bereits behutsam modernisiert und verfügt neben gepflegten Wohnräumen über eine voll ausgestattete Küche, während das Obergeschoss durch sein enormes Potenzial besticht. Hier bietet sich viel Platz für individuelle Entfaltungsideen. Ein architektonisches Highlight dieser Etage ist die bereits baurechtlich genehmigte und statisch berechnete Dachterrasse. Da das Geländer noch nicht fertiggestellt wurde, bietet sich hier die Gelegenheit, diesen Bereich final nach eigenen Vorstellungen zu gestalten, sei es als offenes Sonnendeck oder als Basis für einen eleganten Wintergarten mit unverbaubarem Blick über die hessische Landschaft.

Trotz des authentischen Zustands der oberen Etage wurde die technische Substanz des Hauses kontinuierlich und vorausschauend gepflegt. Ein im Jahr 2021 erneuerter Warmwasserspeicher sowie die erst 2025 modernisierte Heizungssteuerung sorgen für einen hocheffizienten und zuverlässigen Betrieb der bewährten Viessmann-Anlage.

Im Außenbereich unterstreicht das beeindruckende, ca. 1.110 m² große Grundstück den repräsentativen Charakter der Immobilie. Es bietet eine Privatsphäre, die heute nur noch selten zu finden ist. Abgerundet wird das Platzangebot durch zwei massive Garagen sowie eine beachtliche Nutzfläche von insgesamt ca. 130 m², welche die funktionalen Vorzüge dieses Anwesens auf ideale Weise ergänzt.

Die Lage im Biebertal-Frankenbach garantiert dabei eine hohe Lebensqualität: Sie genießen die ländliche Idylle und die unmittelbare Nähe zur Natur, ohne auf die hervorragende Anbindung an die Universitätsstädte Gießen und Marburg sowie das Rhein-Main-Gebiet verzichten zu müssen. Dieses Anwesen ist eine seltene Gelegenheit für Käufer, die Substanz, moderne Technik und Weitblick zu schätzen wissen.

Ausstattung

Bauweise: Massivbauweise

Heizung: Öl-Zentralheizung

Fenster: Doppelverglaste Isolierglasfenster (Kunststoffrahmen) mit Rollläden

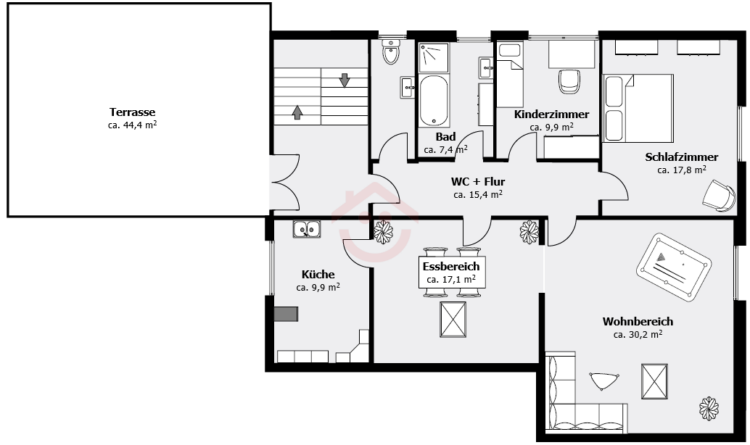
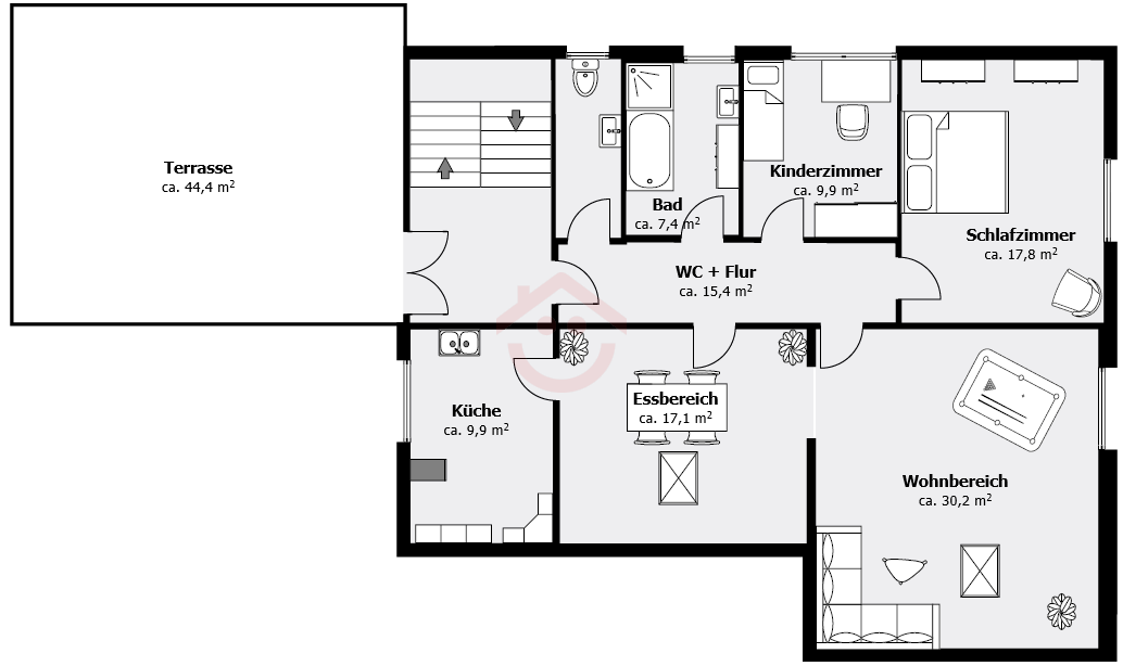
Untergeschoss (ca. 83,6 m²): 2 Zimmer, Küche, Tageslichtbad.

Erdgeschoss (ca. 115,1 m²): 3,5 Zimmer, Küche, Tageslichtbad, Holzofen.

Direkter Zugang zum Garten möglich.

Obergeschoss (ca. 107,7 m²): 3,5 Zimmer, Küche, Tageslichtbad.

Garten: Gepflegte Grünfläche hinter dem Haus, ideal für Familien, zur Erholung oder für Hobbygärtner.

Garage: Geräumige Doppelgarage mit zusätzlichem Stauraum für Fahrräder, Reifen oder Werkzeug.

Hofbereich: Zusätzliche Stellfläche vor der Garage vorhanden.

Keller: Mehrere Kellerräume (Vorratsraum, Werkraum, Waschküche).

Lage

MIKROLAGE (Lage Innerorts):
Das Haus befindet sich in einer sehr ruhigen Straße in der Nähe der Kirche. Das Feld ist in wenigen Minuten zu Fuß erreichbar.

MAKROLAGE (Lage im Umland):
Biebertal Frankenbach ist ein Ortsteil der Gemeinde Biebertal im mittelhessischen Landkreis Gießen. Der Ort liegt westlich von Gießen in einer landschaftlich reizvollen Umgebung am Rande des Naturparks Lahn-Dill-Bergland. Die Mittelzentren Gießen und Wetzlar sind jeweils rund 15 Kilometer entfernt und bieten zahlreiche wirtschaftliche, kulturelle und bildungsbezogene Möglichkeiten. Als Oberzentrum dient Frankfurt am Main, das rund 70 Kilometer südlich liegt und eine bedeutende Rolle für Pendler sowie wirtschaftliche Verflechtungen spielt. Die Region um Frankenbach zeichnet sich durch eine idyllische, ländliche Prägung mit weitläufigen Wiesen, Wäldern und landwirtschaftlich genutzten Flächen aus, die vielfältige Erholungsmöglichkeiten bieten. Historisch ist der Ort durch seine lange Siedlungsgeschichte geprägt, was sich in einigen historischen Gebäuden und Fachwerkhäusern widerspiegelt.

INFRASTRUKTUR:
Frankenbach verfügt über eine solide Grundversorgung mit kleineren Geschäften und lokalen Dienstleistern. Für größere Einkäufe bieten sich die nahegelegenen Städte Gießen, Wetzlar und die anderen Ortsteile von Biebertal an, die eine Vielzahl von Supermärkten, Fachgeschäften und Einkaufszentren bereithalten. Bildungseinrichtungen umfassen eine örtliche Grundschule und Kindergärten, während weiterführende Schulen in den umliegenden Städten, insbesondere in Gießen und Wetzlar, gut erreichbar sind. Die medizinische Versorgung wird durch niedergelassene Ärzte und Apotheken in der Umgebung sichergestellt, während größere Krankenhäuser und Fachkliniken in Gießen und Wetzlar eine umfassende medizinische Betreuung bieten. Freizeitangebote umfassen Sportvereine, Rad- und Wanderwege sowie kulturelle Veranstaltungen, die in der Gemeinde Biebertal regelmäßig stattfinden. Die umliegenden Wälder und Naturschutzgebiete laden zu Outdoor-Aktivitäten ein.

VERKEHRSANBINDUNG:
Frankenbach ist gut an das regionale und überregionale Verkehrsnetz angebunden. Die Bundesstraße B429 verbindet den Ort mit Gießen und Wetzlar und ermöglicht eine schnelle Erreichbarkeit der umliegenden Städte. Die Autobahnen A480 und A45 sind nur wenige Kilometer entfernt und bieten eine direkte Anbindung an das überregionale Straßennetz. Der öffentliche Nahverkehr ist durch Buslinien gewährleistet, die regelmäßige Verbindungen nach Gießen, Wetzlar und weitere umliegende Orte bieten. Die nächstgelegenen Bahnhöfe befinden sich in Gießen und Wetzlar mit direkten Zugverbindungen nach Frankfurt, Marburg und Kassel. Der internationale Flughafen Frankfurt am Main ist in etwa 60 Minuten mit dem Auto erreichbar, was den Standort insbesondere für Berufspendler attraktiv macht.

35444 Biebertal-Frankenberg

Sonstiges

Alle in diesem Exposé gemachten Angaben beruhen auf den uns zur Verfügung gestellten Informationen und sind ohne Gewähr.

Übersicht

ObjektartHäuser
TypMehrfamilienhaus
Kaufpreis447.000 €
Zimmer10
Courtage3,57 % vom Verkaufspreis inkl. Mwst.
Dieses Angebot ist provisionspflichtig!
Wohnfläche306 m²
Nutzfläche132 m²
Kellerfläche18 m²
Grundstücksfläche1.110 m²
Verfügbar ab01.08.2026
StellplatzFreiplatz, Garage
ObjektnummerIMMO763

Ausstattung

Baujahr1972
BauweiseMassivhaus
Anzahl Etagen3
Zustandgepflegt
AusstattungNormal
Anzahl Schlafzimmer6
Anzahl Bäder3
Anzahl Balkone1
BadDusche, Fenster, Wanne
Gäste-WC
Einbauküche
BodenbelagFliesen, Laminat, Parkett
Wasch-/Trockenraum
offener Kamin
HeizungÖl
HeizungsartZentralheizung

Energieausweis

ArtBedarfsausweis
gültig bisAugust 2032
Energieverbrauchskennwert167,84 kWh/(m²*a)
wesentliche EnergieträgerÖl
Jahrgangab 2014

Ansprechpartner

Benito Kiehl
Gießener Str. 49-51
35452 Heuchelheim
Telefon +49 641 20100040
E-Mail anfrage@ihr-immobilienprofi.de

Kontaktformular

    Ich habe die AGB und Widerrufsbelehrung gelesen und stimme diesen zu.
    Ich bin einverstanden und verlange ausdrücklich, dass Sie vor Ende der Widerrufsfrist mit der Leistungserbringung beginnen. Mir ist bekannt, dass ich bei vollständiger Vertragserfüllung durch Sie mein Widerrufrecht verliere.
    Ich bin mit der Datenschutzerklärung einverstanden und erkläre, dass die Ihr Immobilienprofi GmbH mich telefonisch oder per E-Mail kontaktieren darf.
    Datenschutzhinweis: Ihre Anfrage wird verschlüsselt per https an unseren Server gesendet.