Beschreibung

Zum Verkauf steht ein ehemaliges Schulhaus unterhalb des Schlosses in der Dillenburger Innenstadt.

Das Schulhaus wurde zuletzt zu Wohnzwecken genutzt. Zwei Wohnungen im Hochparterre und eine große Wohnung im ersten Obergeschoss.

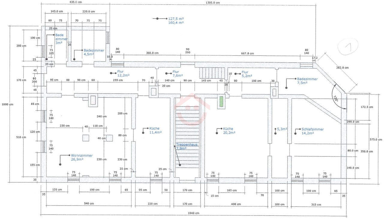
Wohnung 1 EG links (ca. 58m²):
Die Wohnung besteht aus einem Wohn- und Schlafzimmer, einer Toilette und einem Tageslicht-Wannenbad sowie einer Küche. Der Garten neben dem Haus ist dieser Wohnung zugeordnet.

Wohnung 2 EG rechts (ca. 52m²):
Eine große Wohnküche bildet hier den Lebensmittelpunkt. Das Schlafzimmer befindet sich im hinteren Teil der Wohnung. Ein kleines Duschbad mit Fenster steht dem Bewohner zur alleinigen Nutzung zur Verfügung.

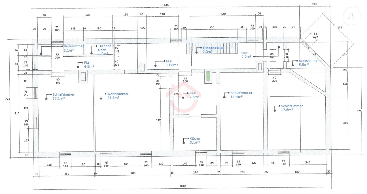
Wohnung 3 OG (ca. 117m²):
Die dritte Wohnung verteilt sich auf das gesamte Obergeschoss, hat drei separate Schlafzimmer und ein Wohnzimmer. Die kleine Küche hat einen zusätzlichen Vorraum und könnte so entsprechend vergrößert werden.
Weiterhin gehören eine Toilette und ein Duschbad zur Wohnung.

2022 wurde bereits das Dach erneuert. Die entsprechenden Nachweise können vorgelegt werden.

Ausstattung

- neue Dacheindeckung mit Echtschiefer in 2022

Lage

MIKROLAGE (Lage Innerorts):
Das Haus befindet sich in der Dillenburger Innenstadt unterhalb des Schlosses.

MAKROLAGE (Lage im Umland):
Dillenburg liegt im Lahn-Dill-Kreis in Mittelhessen und ist als traditionsreiche Oranierstadt bekannt. Die Stadt befindet sich im nördlichen Teil des Kreises und ist landschaftlich reizvoll im Dilltal eingebettet, umgeben von bewaldeten Höhenzügen des Westerwaldes und Rothaargebirges. Wetzlar, das nächstgelegene Mittelzentrum, ist etwa 30 Kilometer entfernt und bietet zahlreiche wirtschaftliche und kulturelle Möglichkeiten. Gießen, ein weiteres bedeutendes Mittelzentrum mit einer renommierten Universität, liegt rund 45 Kilometer südlich. Als wichtiges Oberzentrum fungiert Frankfurt am Main, etwa 100 Kilometer südlich, mit seiner internationalen Bedeutung als Finanz- und Wirtschaftsstandort. Dillenburg selbst hat eine reiche Geschichte, die insbesondere durch das Schloss Dillenburg und seine Bedeutung als Geburtsstadt von Wilhelm I. von Oranien geprägt ist. Zahlreiche Wanderwege, darunter der berühmte Rothaarsteig, bieten ideale Möglichkeiten zur Naherholung.

INFRASTRUKTUR:
Dillenburg verfügt über eine gut ausgebaute Infrastruktur mit einem breiten Angebot an Einkaufsmöglichkeiten, darunter Supermärkte, Fachgeschäfte und Einzelhandel. Die Innenstadt bietet eine Mischung aus traditionellen Läden und modernen Einkaufszentren. Bildungseinrichtungen sind in ausreichender Zahl vorhanden, von Kindergärten und Grundschulen bis hin zu weiterführenden Schulen. Zudem gibt es berufliche Bildungseinrichtungen wie das Theodor-Heuss-Gymnasium und die Wilhelm-von-Oranien-Schule. Die medizinische Versorgung ist durch niedergelassene Ärzte, Apotheken und das Krankenhaus Dillenburg sichergestellt. Ergänzt wird das Gesundheitsangebot durch Fachkliniken in den umliegenden Städten. Freizeitmöglichkeiten sind vielfältig: Neben Sportvereinen und Fitnessstudios gibt es zahlreiche kulturelle Angebote, Museen und Veranstaltungen. Zudem bietet die Umgebung viele Naherholungsgebiete für Outdoor-Aktivitäten wie Wandern und Radfahren.

VERKEHRSANBINDUNG:
Dillenburg verfügt über eine ausgezeichnete Verkehrsanbindung. Die Autobahn A45 verläuft direkt an der Stadt vorbei und ermöglicht eine schnelle Anbindung an die Ballungsräume im Rhein-Main-Gebiet sowie in Nordrhein-Westfalen. Zudem sind die Bundesstraßen B253 und B277 wichtige Verkehrsachsen für die Region. Der Bahnhof Dillenburg ist ein wichtiger Haltepunkt an der Bahnstrecke Frankfurt-Siegen-Köln und bietet regelmäßige Verbindungen in diese Städte. Ergänzt wird das Angebot durch ein gut ausgebautes Busnetz, das den öffentlichen Nahverkehr innerhalb der Stadt sowie in die umliegenden Orte sicherstellt. Der internationale Flughafen Frankfurt am Main ist in etwa einer Stunde mit dem Auto erreichbar und bietet eine optimale Anbindung an nationale und internationale Reiseziele.

Quellen u.a.
Webseiten der Städte und Gemeinden
Wikipedia
RMV bzw. Bahn

35683 Dillenburg

Sonstiges

++ Alle in diesem Exposé gemachten Angaben beruhen auf den uns zur Verfügung gestellten Informationen und sind ohne Gewähr. ++

++ Ihr Immobilienprofi führt bereits seit 2018 - 2024 durchgängig den Titel 'Best Property Agency', welcher von einer unabhängigen Jury der Immobilienzeitschrift Bellevue vergeben wird. ++

++ Gerne machen wir Ihnen ein Angebot zum Verkauf oder zur Vermietung Ihrer Immobilie. Sprechen Sie uns einfach darauf an: 0641-20 1000 40 ++

Übersicht

ObjektartHäuser
TypMehrfamilienhaus
Kaufpreis159.000 €
Zimmer6,5
Courtage2,975 % vom Verkaufspreis inkl. Mwst.
Dieses Angebot ist provisionspflichtig
Wohnfläche227 m²
Nutzfläche19 m²
Dachbodenfläche120 m²
Grundstücksfläche231 m²
Gartenfläche30 m²
Verfügbar abab sofort
ObjektnummerIMMO631

Ausstattung

BauweiseMassivhaus
Anzahl Etagen2
Zustandrenovierungsbedürftig
Letzte Modernisierung2022
AusstattungEinfach
Anzahl Schlafzimmer6
Anzahl Bäder3
BadDusche, Fenster, Wanne
Gäste-WC
BodenbelagDielen, Fliesen, Teppichboden
denkmalgeschützt
HeizungGas
HeizungsartZentralheizung

Energieausweis

Dieses Objekt ist denkmalgeschützt und daher ist kein Energieausweis notwendig.

Ansprechpartner

Tobias Kassebaum
Gießener Str. 49-51
35452 Heuchelheim
Telefon +49 641 20100040
E-Mail anfrage@ihr-immobilienprofi.de

Kontaktformular

    Ich habe die AGB und Widerrufsbelehrung gelesen und stimme diesen zu.
    Ich bin einverstanden und verlange ausdrücklich, dass Sie vor Ende der Widerrufsfrist mit der Leistungserbringung beginnen. Mir ist bekannt, dass ich bei vollständiger Vertragserfüllung durch Sie mein Widerrufrecht verliere.
    Ich bin mit der Datenschutzerklärung einverstanden und erkläre, dass die Ihr Immobilienprofi GmbH mich telefonisch oder per E-Mail kontaktieren darf.
    Datenschutzhinweis: Ihre Anfrage wird verschlüsselt per https an unseren Server gesendet.