Beschreibung

Diese modernisierte Gewerbeimmobilie bietet eine ideale Kombination aus Büro-, Praxis- sowie Lager- und Produktionsflächen mit einer Gesamtnutzfläche von ca. 825 m².

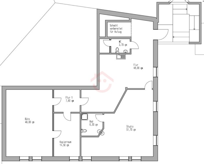
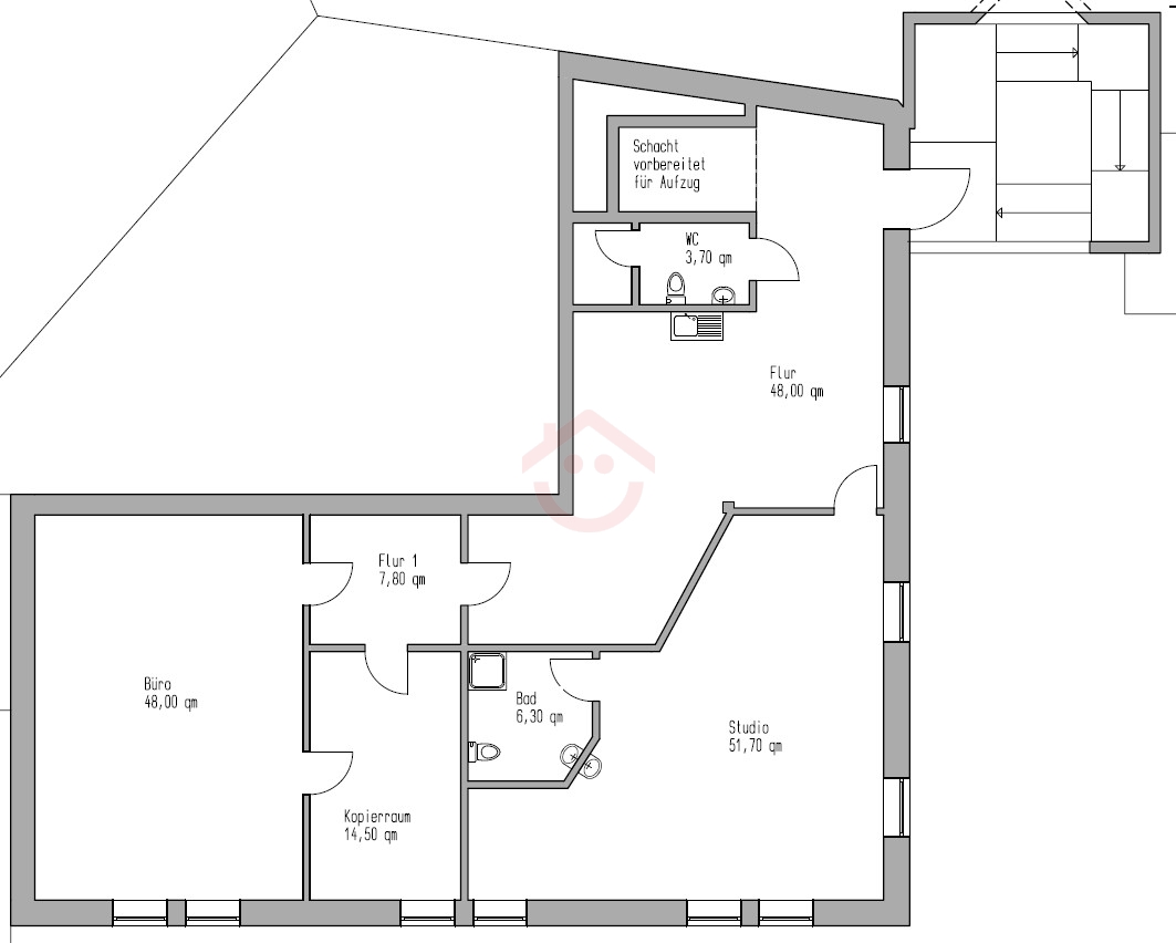
Im Erdgeschoss stehen Ihnen ca. 330 m² Büro- und Verwaltungsfläche sowie eine ca. 165 m² große Lager- bzw. Produktionshalle zur Verfügung. Die Halle ist mit Starkstrom ausgestattet und eignet sich optimal für Unternehmen mit kombiniertem Verwaltungs- und Logistikbedarf. Kurze Wege zwischen Büro und Lager ermöglichen effiziente Arbeitsabläufe.

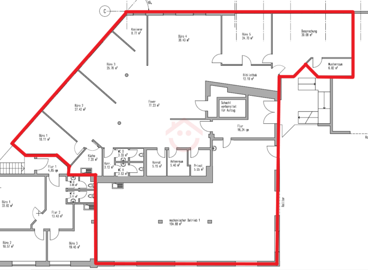
Das Obergeschoss umfasst weitere ca. 330 m² moderne Büro- oder Praxisfläche. Die hellen und freundlichen Räume bieten vielseitige Gestaltungsmöglichkeiten von offenen Arbeitsbereichen bis hin zu klar strukturierten Einzel- oder Behandlungsräumen.

Großzügige Fensterflächen sorgen in beiden Etagen für eine angenehme Arbeitsatmosphäre. Die durchdachte Flächenaufteilung ermöglicht eine flexible Nutzung für verschiedenste Branchen.

Parkplätze befinden sich direkt vor dem Objekt und gewährleisten eine komfortable Erreichbarkeit für Mitarbeiter, Kunden und Geschäftspartner. Die attraktive Außenanlage unterstreicht den repräsentativen Charakter der Immobilie.

Der Einbau eines Aufzugs ist möglich und ermöglicht somit eine barrierearme Nutzung des Obergeschosses.

Diese Immobilie bietet beste Voraussetzungen für Unternehmen, die Wert auf Funktionalität, Repräsentativität und Wachstumspotenzial legen.

Ausstattung

- Helle, freundliche Räume
- Flexible Raumgestaltung
- Getrennte Toiletten
- Ausgestattete Küche
- Starkstromanschluss
- Parkplätze direkt vor dem Objekt
- Gepflegte, attraktive Außenanlage

Lage

MIKROLAGE (Lage Innerorts):
Die Gewerbeeinheit liegt im südlichen Teil von Brandoberndorf.

MAKROLAGE (Lage im Umland):
Brandoberndorf ist mit etwa 2100 Einwohnern der größte Ortsteil der mittelhessischen Gemeinde Waldsolms im südlichen Lahn-Dill-Kreis und Sitz ihrer Gemeindeverwaltung. Waldsolms grenzt im Norden an die Stadt Braunfels und die Gemeinde Schöffengrund, im Osten an die Gemeinde Langgöns (Landkreis Gießen), im Süden an die Gemeinde Grävenwiesbach (Hochtaunuskreis) sowie im Westen an die Gemeinde Weilmünster (Landkreis Limburg-Weilburg). Die Gemeinde Waldsolms liegt im Naturpark Taunus genau mittig zwischen der 20 km nördlich liegenden Stadt Wetzlar und der im Süden liegenden Stadt Usingen in etwa 15 km Entfernung. Fährt man in östliche Richtung gelangt man nach etwa 15 km nach Butzbach. Im Westen liegt Weilburg mit etwa 21 km Entfernung. Durch die Gemeinde fließt der Solmsbach.

INFRASTRUKTUR:
In Waldsolms gibt es neben bekannten Supermärkten und weiteren Einkaufsmöglichkeiten für den täglichen Bedarf auch einige nette Lokale zum Einkehren. Außerdem gibt es im Ort einen Allgemeinmediziner, eine Zahnarztpraxis, ein Sportstudio und Physiotherapie und ein sehr schönes Freibad (Taunusperle). Mitten im Ort gibt es eine Grundschule (Lotte-Eckert-Schule) sowie zwei Kindergärten. Weiterführende Schulen befinden sich in Braunfels, Wetzlar und Usingen. Als besonderes Highlight zählt in der Umgebung der bekannte 18-Loch-Platz des Golf + Country Clubs mit Driving Range.

VERKEHRSANBINDUNG:
Mit dem Auto gelangt man innerhalb weniger Minuten auf die im Osten liegende A5, welche direkt nach Frankfurt führt. Mittels der Ortsumgehung von Butzbach ist die Autobahnauffahrt sehr zügig zu erreichen. Von Langgöns aus ist die Autobahnauffahrt Langgöns der A485, welche ein Teilstück des Gießener Rings bildet, in ca. 3 Autominuten zu erreichen. Hier gibt es seit dem Jahre 2000 eine Haltestelle der Hessischen Landesbahn GmbH als RMV-Linie 15. Die Taunusbahn mit der Endstation in Brandoberndorf fährt bis nach Frankfurt (Main) Hauptbahnhof. Weitere Haltestellen gibt es in Langgöns und Butzbach. Die Fahrtzeit mit dem Zug beträgt nach Gießen ca. 9 min und nach Frankfurt ca. 50 min.

Hasselborner Str. 19-21, 35647 Waldsolms

Sonstiges

Alle in diesem Exposé gemachten Angaben beruhen auf den uns zur Verfügung gestellten Informationen und sind ohne Gewähr.

Übersicht

ObjektartBüros/Praxen
TypBürofläche
Nettokaltmiete4.900 €
Nebenkosten1.150 €
Warmmiete inkl. Heizkosten6.050 €
Miete zzgl. Umsatzsteuer
Kaution3 Monatskaltmieten
Bürofläche660 m²
Sonstige Fläche165 m²
Gesamtfläche825 m²
Verfügbar abnach Vereinbarung
ObjektnummerIMMO760

Ausstattung

Baujahr1994
Zustandgepflegt
Letzte Modernisierung2021
AusstattungNormal
Barrierefrei
DV-Verkabelung
Aufzug
HeizungÖl

Energieausweis

ArtBedarfsausweis
gültig bisApril 2025
Energieverbrauchskennwert229 kWh/(m²*a)
wesentliche EnergieträgerÖl
Jahrgangab 2014

Ansprechpartner

Tobias Kassebaum
Gießener Str. 49-51
35452 Heuchelheim
Telefon +49 641 20100040
E-Mail anfrage@ihr-immobilienprofi.de

Kontaktformular

    Ich habe die AGB und Widerrufsbelehrung gelesen und stimme diesen zu.
    Ich bin einverstanden und verlange ausdrücklich, dass Sie vor Ende der Widerrufsfrist mit der Leistungserbringung beginnen. Mir ist bekannt, dass ich bei vollständiger Vertragserfüllung durch Sie mein Widerrufrecht verliere.
    Ich bin mit der Datenschutzerklärung einverstanden und erkläre, dass die Ihr Immobilienprofi GmbH mich telefonisch oder per E-Mail kontaktieren darf.
    Datenschutzhinweis: Ihre Anfrage wird verschlüsselt per https an unseren Server gesendet.