Beschreibung

Entscheiden Sie sich für dieses modernisierte Einfamilienhaus und werden Sie zeitgleich Vermieter mit dem 1995 als Wohngebäude ausgebauten Nebengebäude oder nutzen Sie das Nebengebäude als Mehrgenerationenhaus.

Einfamilienhaus:
Auf der linken Seite des Anwesens befindet sich das freistehende Einfamilienhaus zur Eigennutzung. Vom abgetrennten Eingangsbereich gelangt man durch eine Zwischentür in das zentral gelegene Treppenhaus. Eine Tür auf der linken Seite führt direkt in das offene Wohnzimmer, welches sich über die gesamte Breite des Gebäudes erstreckt und im hinteren Teil direkt mit dem Esszimmer verbunden ist. Vom Esszimmer wiederum gelangt man zurück in das Treppenhaus. An das Esszimmer offen angrenzend befindet sich die moderne Küche. Zeitgemäß ist die Speisekammer. Ein Tageslicht-Duschbad rundet die Wohnetage ab.

Im ersten Obergeschoss befinden sich drei Wohn und Schlafräume. Zwei davon, mit fast identischer Größe, sind der Gebäudevorderseite zugewandt und der dritte, größte Raum hat auf der Gebäuderückseite direkten Zugang zur Terrasse und dem angrenzenden Garten. Zentral gelegen ist das Tageslicht-Wannenbad.

Stauraum befindet sich auf dem Dachboden sowie in den drei Kellerräumen dieses Hauses ausreichend. Stellplätze für die Waschmaschine sind sowohl im Keller als auch im ersten Obergeschoß vorhanden.

Nebengebäude:
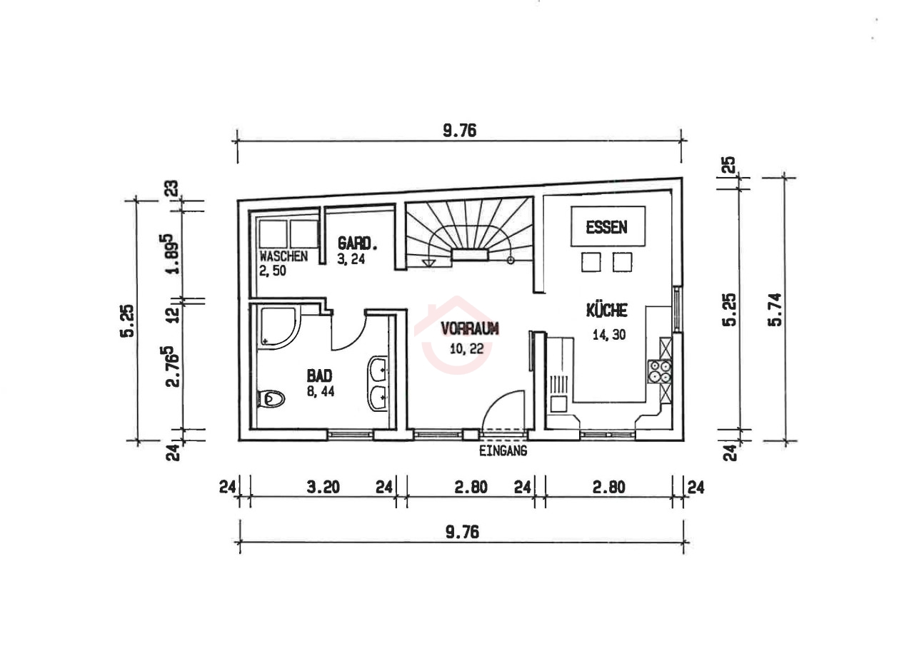
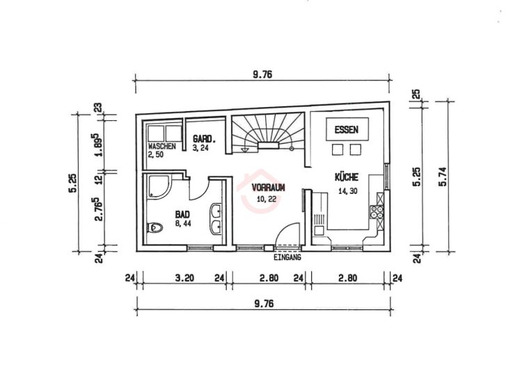
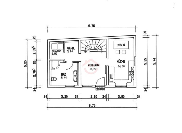
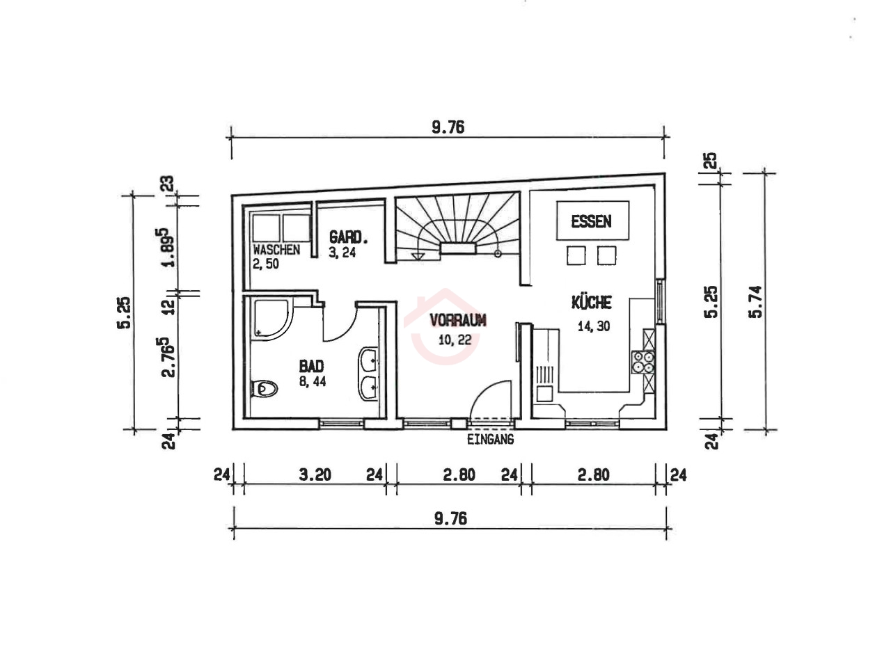
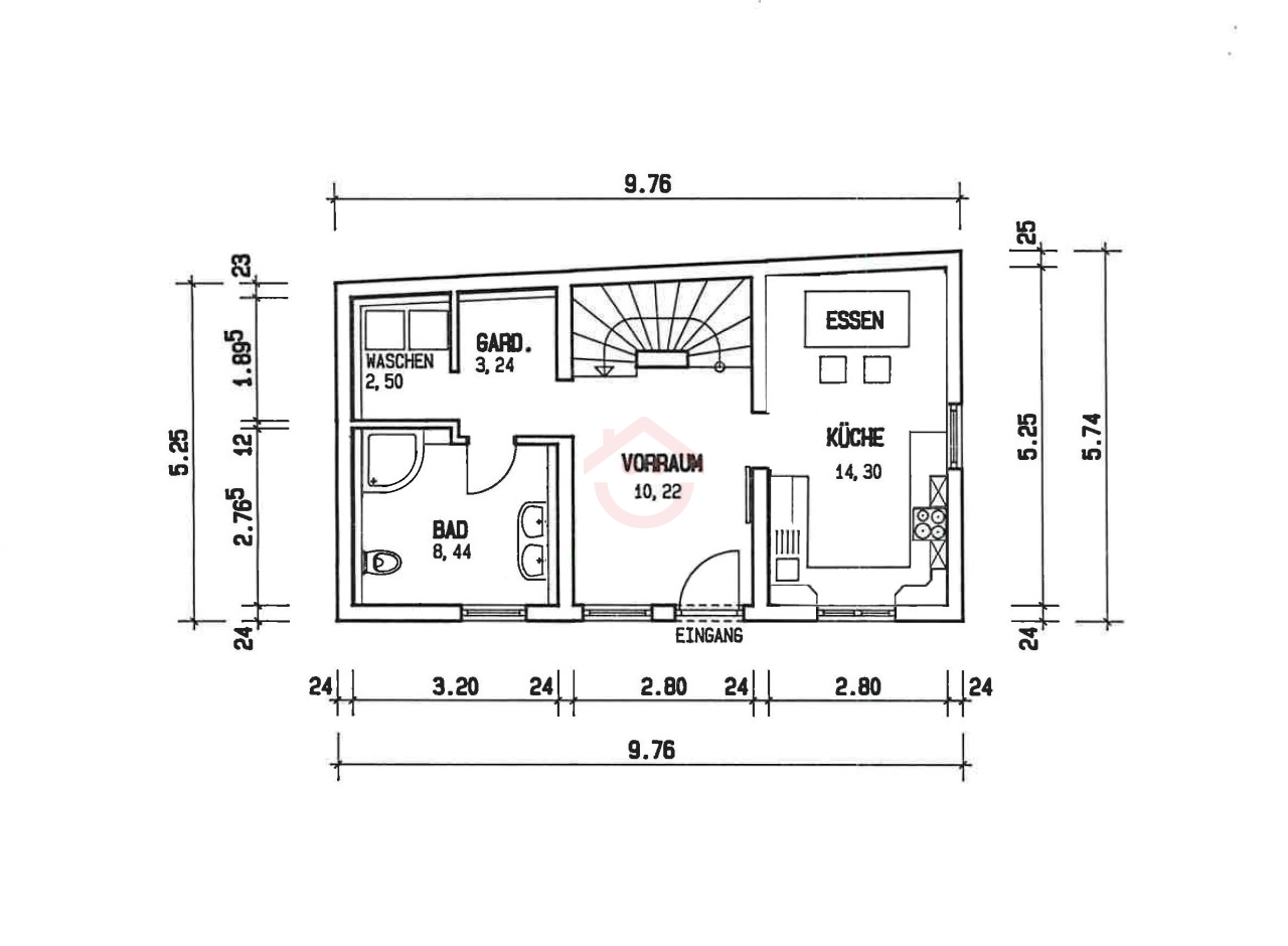
Das vermietete Nebengebäude, umgebaut im Jahr 1995, befindet sich auf der rechten Seite des Grundstückes. Die Eingangstür führt in die zentral gelegene, großzügig gestaltete Diele. Rechtsseitig befindet sich die geschlossene Küche, welche mit einer aus Einbauküche und einem Essbereich ausgestattet ist. Auf der linken Seite folgen das Tageslicht-Dusch- und Wannenbad, sowie ein Abstellraum mit Waschküche.

Der Treppe ins Obergeschoss folgend gelangen wir in den sehr hellen, offenen Wohnbereich. Daran angrenzend befindet sich das Schlafzimmer.

Das Nebengebäude ist aktuell für 750 EUR kalt vermietet. Sofern Sie sich zur Weitervermietung entschließen, kann diese Miete beim Kauf direkt beim Abtrag Ihres Darlehens berücksichtigt werden.

Nutzen Sie Ihre Chance auf ein Anwesen mit vielfältigen Möglichkeiten und nehmen Sie jetzt Kontakt auf!

Ausstattung

- zwei getrennte Wohnhäuser
- Terrasse mit direktem Gartenzugang
- Stellplätze im Hof und in der Scheune

Lage

MIKROLAGE (Lage Innerorts):
Das Ensemble befindet sich zentral im Ortskern von Rodheim-Bieber.

MAKROLAGE (Lage im Umland):
Rodheim-Bieber ist ein Stadtteil von Biebertal im mittelhessischen Landkreis Gießen. Gelegen im westlichen Teil des Landkreises, erstreckt sich der Ort in einer landschaftlich reizvollen Umgebung am Fuße des Krofdorfer Forsts. Die Mittelzentren Gießen und Wetzlar sind jeweils nur etwa 10 bis 15 Kilometer entfernt und bieten zahlreiche wirtschaftliche, kulturelle und bildungsbezogene Möglichkeiten. Als Oberzentrum fungiert Frankfurt am Main, das rund 70 Kilometer südlich liegt und eine bedeutende Rolle für Pendler und Unternehmen spielt. Die Region um Rodheim-Bieber ist durch weitläufige Wälder, Wiesen und landwirtschaftlich genutzte Flächen geprägt und bietet zahlreiche Naherholungsmöglichkeiten. Historisch ist der Ort von einer langen Siedlungstradition gekennzeichnet, was sich unter anderem in der gut erhaltenen Bausubstanz und einigen historischen Gebäuden widerspiegelt.

INFRASTRUKTUR:
Rodheim-Bieber verfügt über eine solide Infrastruktur mit mehreren Geschäften des täglichen Bedarfs, Bäckereien und kleineren Fachgeschäften. Für größere Einkäufe sind die nahegelegenen Städte Gießen und Wetzlar mit einer Vielzahl an Supermärkten, Einkaufszentren und Fachmärkten gut erreichbar. Bildungseinrichtungen wie eine Grundschule und Kindergärten befinden sich direkt im Ort, während weiterführende Schulen in Gießen und Wetzlar zur Verfügung stehen. Die medizinische Versorgung wird durch niedergelassene Ärzte und Apotheken sichergestellt, während größere Krankenhäuser und Fachkliniken in Gießen schnell erreichbar sind. Freizeitmöglichkeiten sind vielfältig: Sportvereine, Wander- und Radwege sowie kulturelle Veranstaltungen bieten Abwechslung für Jung und Alt. Die umliegenden Wälder und Naturschutzgebiete laden zu Outdoor-Aktivitäten ein.

VERKEHRSANBINDUNG:
Rodheim-Bieber verfügt über eine gute Verkehrsanbindung. Die Bundesstraße B429 verbindet den Ort mit Gießen und Wetzlar und ermöglicht eine schnelle Erreichbarkeit der umliegenden Städte. Die Autobahnen A480 und A45 sind nur wenige Kilometer entfernt und bieten eine direkte Anbindung an das überregionale Straßennetz. Der öffentliche Nahverkehr ist durch Buslinien gewährleistet, die regelmäßige Verbindungen nach Gießen, Wetzlar und weitere umliegende Orte bieten. Die nächstgelegenen Bahnhöfe befinden sich in Gießen und Wetzlar, mit direkten Zugverbindungen nach Frankfurt, Marburg und Kassel. Der internationale Flughafen Frankfurt am Main ist in etwa 60 Minuten mit dem Auto erreichbar, was den Standort insbesondere für Berufspendler attraktiv macht.

35444 Biebertal

Sonstiges

Alle in diesem Exposé gemachten Angaben beruhen auf den uns zur Verfügung gestellten Informationen und sind ohne Gewähr.

Übersicht

ObjektartHäuser
TypEinfamilienhaus
Kaufpreis398.000 €
akt. Mieteinnahmen750 €
Zimmer7
Courtage2,975 % vom Verkaufspreis inkl. Mwst.
Dieses Angebot ist provisionspflichtig.
Wohnfläche232 m²
Nutzfläche131 m²
Kellerfläche53 m²
Grundstücksfläche782 m²
Verfügbar ab01.05.2026
Vermietet
StellplatzFreiplatz
Anzahl Stellplätze4
ObjektnummerIMMO732

Ausstattung

BauweiseMassivhaus
Anzahl Etagen2
Zustandmodernisiert
Letzte Modernisierung2021
AusstattungNormal
Anzahl Schlafzimmer4
Anzahl Bäder3
Anzahl Balkone1
Anzahl Terrassen1
BadDusche, Fenster, Wanne
Einbauküche
offene Küche
BodenbelagFliesen, Laminat, Parkett
Wasch-/Trockenraum
Einliegerwohnung vorhanden
HeizungGas
HeizungsartZentralheizung

Energieausweis

ArtVerbrauchsausweis
gültig bisJuli 2035
Energieverbrauchskennwert131,85 kWh/(m²*a)
wesentliche EnergieträgerGas
Jahrgangab 2014

Ansprechpartner

Tobias Kassebaum
Gießener Str. 49-51
35452 Heuchelheim
Telefon +49 641 20100040
E-Mail anfrage@ihr-immobilienprofi.de

Kontaktformular

    Ich habe die AGB und Widerrufsbelehrung gelesen und stimme diesen zu.
    Ich bin einverstanden und verlange ausdrücklich, dass Sie vor Ende der Widerrufsfrist mit der Leistungserbringung beginnen. Mir ist bekannt, dass ich bei vollständiger Vertragserfüllung durch Sie mein Widerrufrecht verliere.
    Ich bin mit der Datenschutzerklärung einverstanden und erkläre, dass die Ihr Immobilienprofi GmbH mich telefonisch oder per E-Mail kontaktieren darf.
    Datenschutzhinweis: Ihre Anfrage wird verschlüsselt per https an unseren Server gesendet.