Beschreibung

Es gibt Orte, die erzählen eine Geschichte, noch bevor man die erste Schwelle überschritten hat. Diese charaktervolle Hofreite, die stolz unter dem Schutz eines Ensembles steht, ist ein solches Juwel. Hier finden Sie nicht einfach nur ein Haus, sondern ein gewachsenes Lebensgefühl auf einem beeindruckenden Grundstück von 1.683 Quadratmetern.

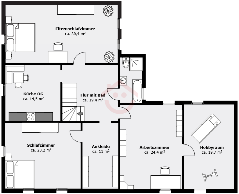
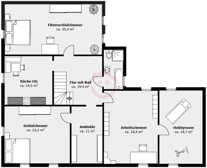
Es ist der ideale Ort für Menschen, die das Besondere suchen und den Traum vom Leben mit Tieren, insbesondere Pferden, direkt vor der eigenen Haustür verwirklichen möchten. Das Haupthaus empfängt Sie mit einer Großzügigkeit, die heute selten geworden ist. Auf rund 240 Quadratmetern Wohnfläche, verteilt auf acht helle und individuell geschnittene Zimmer, bietet sich Ihnen ein Raumangebot, das keine Wünsche offen lässt. Da sowohl im Erdgeschoss als auch im Obergeschoss Küchenanschlüsse vorhanden sind, passt sich das Haus flexibel Ihren Lebensphasen an, sei es für die große Familie, als Mehrgenerationenprojekt oder um Wohnen und Arbeiten harmonisch miteinander zu verbinden.

Ein entscheidender Vorteil für jeden Modernisierer ist die bereits zeitgemäß erneuerte Elektrik, die mit einem modernen FI-Schutzschalter ausgestattet ist und Ihnen somit eine solide technische Basis für alle weiteren Gestaltungspläne bietet. Die derzeitige Beheizung über Nachtspeicheröfen und einen zusätzlichen Ölofen markiert den perfekten Startpunkt für Ihre eigenen Vorstellungen von moderner Energieeffizienz, da Sie bei der Sanierung völlig frei in der Wahl eines zukunftsfähigen Heizsystems sind.

Sobald Sie das Wohnhaus verlassen, eröffnet sich Ihnen eine Welt voller Möglichkeiten. Die gewaltige Außenanlage besticht durch einen großen, gepflasterten Innenhof, der von majestätischen Scheunengebäuden umschlossen wird und absolute Privatsphäre garantiert. Das Volumen dieser Wirtschaftsgebäude ist schier unglaublich und lässt die Herzen von Handwerkern und Tierliebhabern gleichermaßen höherschlagen. Besonders hervorzuheben sind die authentischen Stallungen, die ehemals für Schweine und Pferde genutzt wurden und nun darauf warten, wieder mit Leben gefüllt zu werden. Für Pferdehalter bietet sich hier die seltene Chance, die eigenen Tiere in unmittelbarer Nähe zu wissen und gleichzeitig über enorme Lagerkapazitäten für Heu und Gerät in der riesigen Scheune zu verfügen.
Der Weg führt weiter hinter die historischen Mauern in den weitläufigen Garten, der eine grüne Oase der Ruhe darstellt. Hier können Sie auf der großen, überdachten Terrasse den Feierabend genießen, während Ihr Blick über das eigene Land schweift, das genügend Platz einen prächtigen Selbstversorgergarten bietet.

Diese Hofreite ist eine Einladung an alle, die anpacken wollen und den Wert historischer Bausubstanz zu schätzen wissen, ohne dabei auf die Freiheit einer gigantischen Nutzfläche verzichten zu wollen. Es ist ein Ort, an dem Ihre Tiere ein Zuhause finden und Sie selbst die Hektik des Alltags hinter dem großen Hoftor zurücklassen können. Wir laden Sie herzlich ein, dieses Raumwunder persönlich zu entdecken und sich von der einzigartigen Atmosphäre dieser besonderen Immobilie begeistern zu lassen.

Ausstattung

Bauweise: Mischbauweise,unterkellert.

Heizung: Nachtspeicheröfen, sowie Ölofen

Elektrik: Sicherungskasten auf aktuellem Stand

Fenster: Doppelverglaste Isolierglasfenster (Kunststoffrahmen)

Innenhof: Großer, einladender Innenhof, ideal für Familien oder zur Erholung

Scheune: Geräumige Scheune mit zusätzlichem Stauraum für Fahrräder, Reifen oder Werkzeug.

Stallungen: Vorhanden für Schweine bzw. Pferde

Hofbereich: Zusätzliche Stellfläche vor der Garage vorhanden.

Keller: Mehrere Kellerräume

Lage

MIKROLAGE (Lage im Ort):

Die Immobilie befindet sich in Langd, einem idyllischen und familienfreundlichen Stadtteil von Hungen. Die Lage zeichnet sich durch ein ruhiges, gewachsenes Wohnumfeld aus, das vor allem durch Ein- und Zweifamilienhäuser sowie gepflegte Hofreiten geprägt ist. Die naturnahe Umgebung beginnt direkt vor der Haustür und bietet kurze Wege ins Grüne, während die Kernstadt Hungen für Erledigungen des täglichen Bedarfs nur wenige Autominuten entfernt liegt.
MAKROLAGE (Lage im Umland):

Langd ist ein nordöstlich gelegener Stadtteil der Schäferstadt Hungen im mittelhessischen Landkreis Gießen. Geografisch am Übergang zwischen der fruchtbaren Wetterau und den Ausläufern des Vogelsbergs gelegen, bietet der Ort eine hohe Lebensqualität für Menschen, die das ländliche Leben schätzen, ohne auf die Nähe zu städtischen Zentren verzichten zu wollen. Die Stadt Hungen selbst ist ca. 5 km entfernt. Die Universitätsstadt Gießen sowie das Mittelzentrum Friedberg sind in rund 20 bis 25 Minuten erreichbar. Durch die strategisch günstige Lage im erweiterten Einzugsgebiet der Metropolregion Frankfurt am Main (ca. 55 km) ist Langd auch für Pendler attraktiv, die nach Feierabend Ruhe und Erholung suchen.
INFRASTRUKTUR:

Während Langd selbst den Charme eines beschaulichen Wohnortes bewahrt, findet sich die vollständige Infrastruktur im direkt benachbarten Hungen. Dort stehen zahlreiche Supermärkte (Rewe, Lidl, Aldi), Fachärzte, Apotheken sowie vielfältige Gastronomieangebote zur Verfügung. Im Ortsteil Langd sorgt ein aktives Vereinsleben für sozialen Anschluss; zudem gibt es einen örtlichen Kindergarten. Weiterführende Schulen (Gesamtschule) befinden sich in Hungen, während Gymnasien und Hochschulen in Gießen und Nidda ansässig sind. Die medizinische Grundversorgung wird durch die naheliegende Asklepios Klinik in Lich optimal ergänzt. Für die Freizeitgestaltung bieten die umliegenden Wälder und der nahegelegene Inheidener/Trais-Horloffer See erstklassige Bedingungen zum Wandern, Radfahren und Wassersport.
VERKEHRSANBINDUNG:

Langd ist verkehrstechnisch gut erschlossen. Über die nahegelegene B457 besteht eine direkte Verbindung nach Hungen, Nidda und Gießen. Die Autobahnanschlüsse zur A45 (Wölfersheim) und A5 (Fernwald/Reiskirchen) sind in etwa 15 bis 20 Minuten erreichbar, was eine schnelle Anbindung an das Rhein-Main-Gebiet ermöglicht. Vom Bahnhof in Hungen aus verkehrt die Regionalbahn regelmäßig in Richtung Gießen und Gelnhausen/Frankfurt. Ein gut getaktetes Busliniennetz verbindet Langd zudem mit der Kernstadt und den umliegenden Gemeinden. Der Frankfurter Flughafen ist in ca. 50 Minuten Fahrzeit erreichbar.

35410 Hungen Langd

Sonstiges

Alle in diesem Exposé gemachten Angaben beruhen auf den uns zur Verfügung gestellten Informationen und sind ohne Gewähr.

Übersicht

ObjektartHäuser
TypBauernhaus
Kaufpreis279.000 €
Zimmer8
Courtage3,57 % vom Verkaufspreis inkl. Mwst.
Dieses Angebot ist provisionspflichtig!
Wohnfläche250 m²
Grundstücksfläche1.683 m²
Verfügbar abab sofort
StellplatzFreiplatz, Garage
Anzahl Stellplätze4
ObjektnummerIMMO768

Ausstattung

BauweiseMassivhaus
Anzahl Etagen2
AusstattungEinfach
Anzahl Schlafzimmer6
Anzahl Bäder3
BadFenster, Wanne
BodenbelagFliesen, Laminat
Wasch-/Trockenraum
Trockenraum
Fahrradraum
offener Kamin
denkmalgeschützt
HeizungÖl
HeizungsartOfenheizung

Energieausweis

Dieses Objekt ist denkmalgeschützt und daher ist kein Energieausweis notwendig.

Ansprechpartner

Benito Kiehl
Gießener Str. 49-51
35452 Heuchelheim
Telefon +49 641 20100040
E-Mail anfrage@ihr-immobilienprofi.de

Kontaktformular

    Ich habe die AGB und Widerrufsbelehrung gelesen und stimme diesen zu.
    Ich bin einverstanden und verlange ausdrücklich, dass Sie vor Ende der Widerrufsfrist mit der Leistungserbringung beginnen. Mir ist bekannt, dass ich bei vollständiger Vertragserfüllung durch Sie mein Widerrufrecht verliere.
    Ich bin mit der Datenschutzerklärung einverstanden und erkläre, dass die Ihr Immobilienprofi GmbH mich telefonisch oder per E-Mail kontaktieren darf.
    Datenschutzhinweis: Ihre Anfrage wird verschlüsselt per https an unseren Server gesendet.